Light Steel Structure Villa XGZSV007
			
		
			
				Product Description
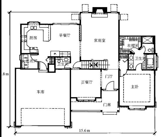
				Structural Drawings
				Technical Parameters
				Relevant Pictures
					
				
			 
			Light Steel Structure Villa:
Light steel structure villa is made from light profile steel and autoclaved lightweight concrete (ALC or AAC) panel. It is widely used in North America, Europe and some Asian countries nowadays, and has been accepted and popular in other countries all over the world. It is environmentally friendly, economical and quick to build; more than 90% of the materials can be recycled.Stable and can resist at least 8 grade earthquakes and 60m/s hurricane. High utilization ratio and energy-saving, great sound proof, heat insulation and warm keeping. Easy construction and very beautiful appearance based on different designs.

                                                                            Ground floor

                                                                          First floor
Light Steel Structure villa:
1. Main structure: rectangular steel tube, H section steel, T section steel and angle steel;
2. Wall, floor and roof cladding: ALC panel and Gypsum board;
3. Roof tile: asphalt shingle;
4. Roof waterproof: SBS coil;
5. Roof insulation: XPS board or fiber glass wool;
6. Stairs: steel wood composite stairs or solid wood;
7. Exterior wall: waterproof painting;
8. Water system: PPR pipe for water and PVC pipe for drainage;
9. Doors: anti-theft steel door for entrance and wood composite door for rooms;
10. Windows: PVC or Aluminum, sliding or tilt and turn windows;
11. Rainspout: PVC pipe;
12. Floor: carpet, engineer flooring or cemic tiles.