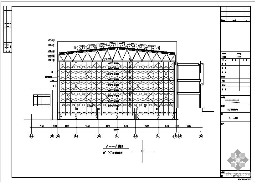
Steel Structural Show Room

Product Description
Structural Drawings
Technical Parameters
Relevant Pictures
Steel Structural Show Room:
This is one kind of steel structural commercial buildings. Main frames are made of H beams and tubes, and the wall can be decorated with glass curtains. Steel structural show room with nice design and high quality can be manufactured by our company.

